Fantástico hogar familiar de 4 dormitorios cerca del centro y playas de Sitges, Semi-adosado
1.295.000 €4
3 
299 Área Construida
Aquí tienes una versión refinada con menos de 1,500 caracteres, manteniendo un tono premium adecuado para Sotheby’s:
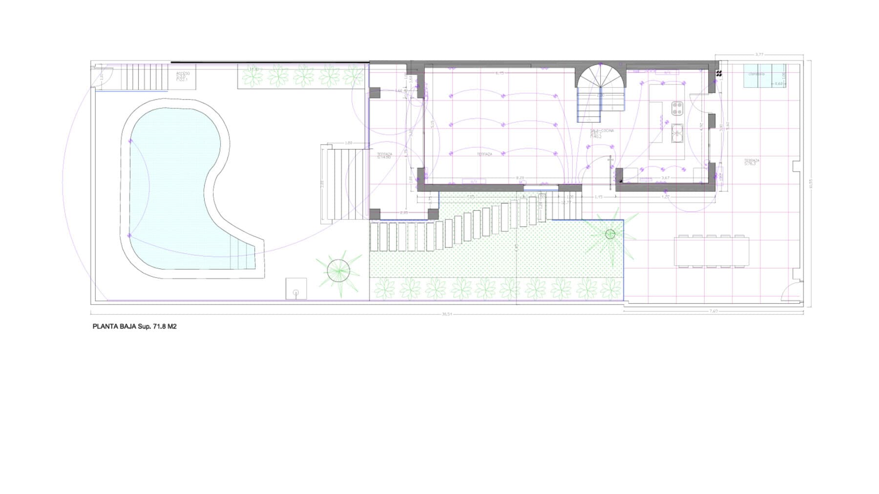
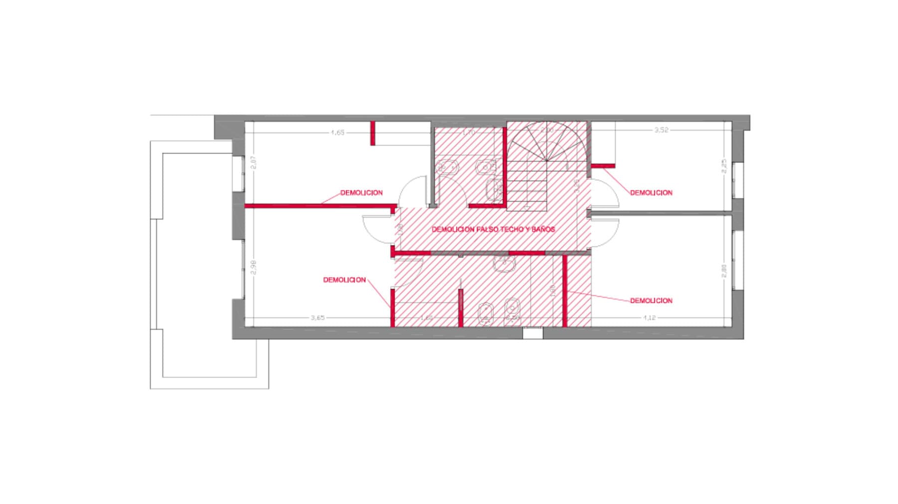
Esta espaciosa residencia orientada al sur de cuatro dormitorios—actualmente en plena renovación—está idealmente ubicada en la codiciada área de Levantina en Sitges. Presenta una excelente oportunidad para una familia o pareja, ya sea como hogar permanente o elegante retiro vacacional. Leer más
Vista del mapa
Características y comodidades
Características y comodidades
Jardín privadoPiscina privadaTerrazaJardín comunitarioPiscina comunitariaVistas a la ciudad / a la franjaVistas a la montañaVistas panorámicasAlmacenamientoGaraje individualSin aire acondicionadoAerotermiaPlanta abiertaSistema de seguridadParking comunitarioCalificación energética del hogar: C
Ubicación
Loading map...
Ubicación aproximada
Independent Real Estate Agent, en colaboración con Spain Sotheby’s International Realty



























