Desarrollo de apartamentos de lujo en Paseo de Gràcia 30
1.400.000 €2
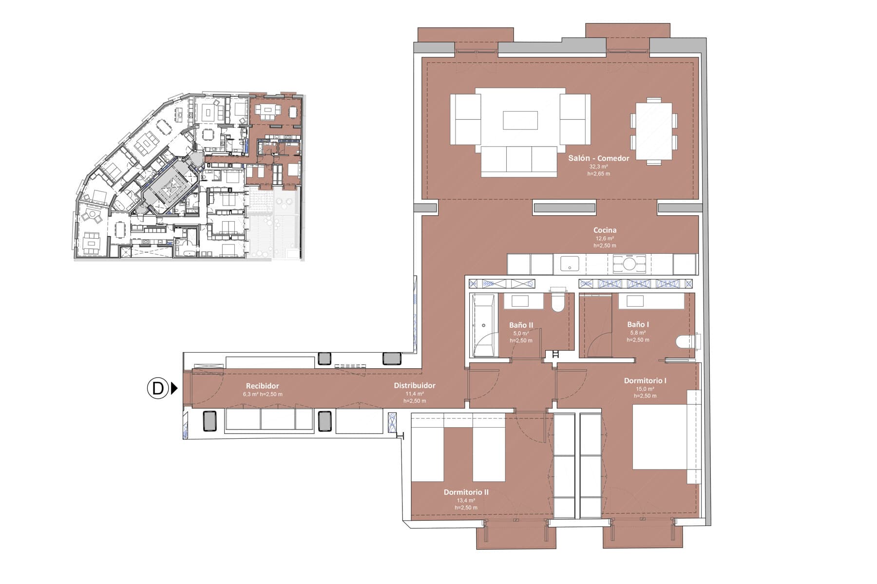
2 
143 Área Construida
Oportunidad única de adquirir un apartamento en un edificio de esquina de 1900 completamente renovado, en la calle más emblemática de Barcelona, para vivir entre los edificios más famosos del modernismo catalán, como Casa Batlló, Casa Milà, Casa Lleó i Morera y Casa Amatller.
Vista del mapa
Características y comodidades
Características y comodidades
Piscina comunitariaAscensorVistas a la ciudad / a la franjaConserje de seguridadVestidorCalefacción central con caldera eléctricaPlanta abiertaSuelo de maderaHogar inteligenteArmario empotradoRestauranteCalificación energética del hogar: A
Ubicación
Loading map...
Ubicación aproximada
Independent Real Estate Agent, en colaboración con Spain Sotheby’s International Realty































